top of page

Insights
Workspace/ Interior Design
Puchong, Selangor
Schematic Design, 2016
xxxsqft
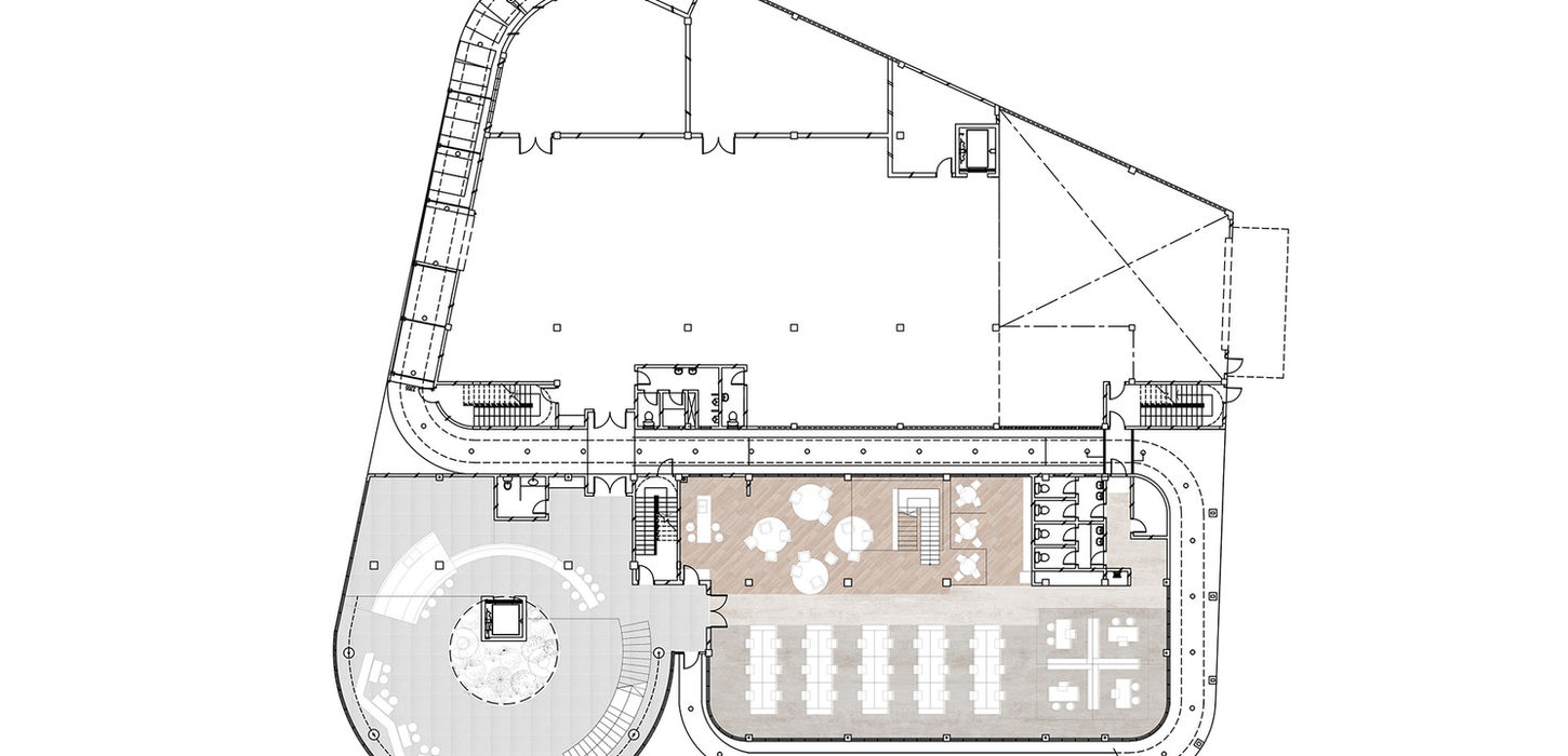
SE is a listed company whose business is expanding rapidly. A larger office is in need and the proposal is to provide a Happy Workplace.
The design allows freedom to sit, move, and work as necessary. Social value is emphasized by introducing break-out/co-working spaces to help to increase energy and idea sharing; quiet zones to get "head-down" and vertical connections to boost workers' productivity by mingling.
SE Holding Studio
"From existing space to work-life balance"
SE is a listed company whose business is expanding rapidly. A larger office is in need and the proposal is to provide a Happy Workplace. The design allows freedom to sit, move, and work as necessary. Social value is emphasized by introducing break-out/co-working spaces to help to increase energy and idea sharing; quiet zones to get "head-down" and vertical connections to boost workers' productivity by mingling.
Team:
bottom of page











